Vente à Audierne (29770) - Réf. 1015V23A - Mandat n°59
Vente appartement à Audierne, Proche plages
96 000 €
EN EXCLUSIVITÉ – Studio avec balcon face à l'océan à Audierne
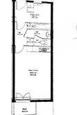
Situé à Audierne, au sein d'une résidence de tourisme bénéficiant d'un emplacement exceptionnel “les pieds dans l'eau”, ce studio de 35,90 m², situé au 1er étage, offre un cadre de vie privilégié face à l'océan Atlantique et à la baie d'Audierne.
L'appartement se compose :
d'une entrée cabine avec placard,
d'un dégagement avec deux placards,
d'un séjour avec cuisine,
d'une salle de bains,
de WC indépendants.
Un balcon de 2,8 m² complète le bien, idéal pour profiter de l'environnement maritime.
La résidence, à l'architecture locale avec toitures en ardoises, se compose de plusieurs appartements répartis dans trois jolis bâtiments. Elle dispose d'une piscine extérieure chauffée orientée vers la mer (5 m x 10 m), avec grande terrasse solarium, ouverte du 05/04/2025 au 20/09/2025 puis du 04/04/2026 au 19/09/2026.
L'emplacement est particulièrement recherché :
100 m de la plage de Trescadec ,
1 km du port et du centre-ville d'Audierne,
1,5 km du port de plaisance d'Esquibien.
Information importante
L'appartement est actuellement exploité en location touristique et sera disponible en janvier 2027, ce qui en fait une opportunité idéale pour un investissement locatif, une résidence secondaire ou un projet à moyen terme.
Réf. 1015V23A
-
- 1 salle de bain
- 1 toilette
-
-
| Pièces | Surface | Exposition | Niveau | Type sol | Description |
|---|---|---|---|---|---|
| Entrée cabine | |||||
| Dégagement | |||||
| Séjour cuisine | |||||
| Salle de bain | |||||
| Wc | |||||
| Balcon |
- Calme
- balcon
- Résidentiel
- Piscine
Informations légales
- 96 000 € honoraires inclus
6,67% TTC d'honoraires inclus à la charge de l'acheteur (90 000 € hors honoraires), bien en copropriété (64 lots dans la copropriété), charges courantes annuelles 2 018 € (168 € par mois), aucune procédure en cours, les informations sur les risques auxquels ce bien est exposé sont disponibles sur georisques.gouv.fr, notre barème de prix est consultable ici
Infos pratiques
Classe énergie (dpe) Indisponible - Classe climat (ges) Indisponible
















Partager cette page